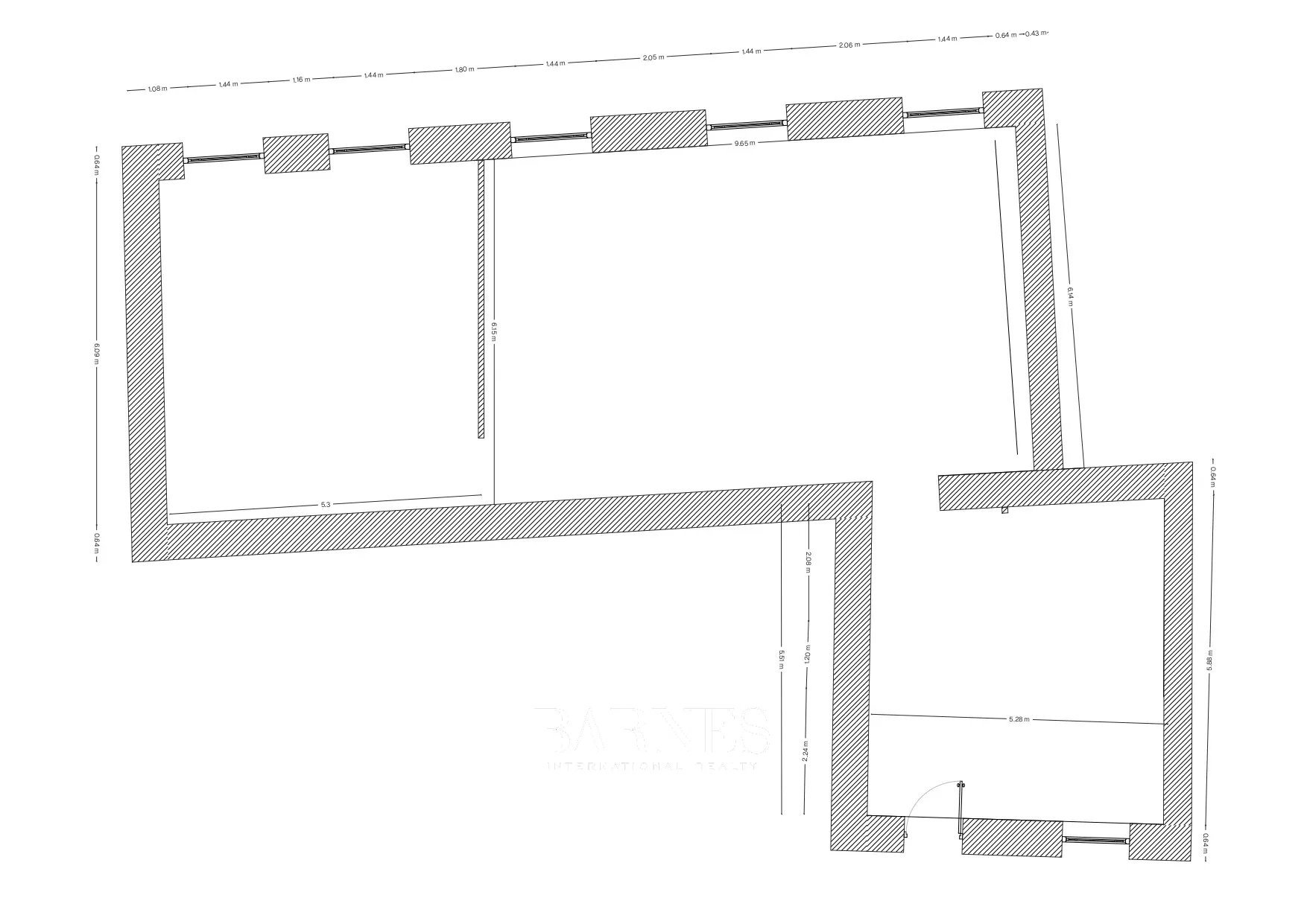
For sale: an elegant 119 m² (measured 125 m²) classical apartment featuring 4.5-meter-high ceilings, beautiful stucco decorations, inlaid parquet flooring, and new, high-quality wooden windows. Thanks to the exceptional ceiling height, an additional 40–50 m² of useful gallery space can be created.
The apartment is currently an open-plan space, allowing the new owner to design the final layout according to their own preferences. The developer is ready to complete the works under a separate agreement and detailed budget.
The property is being sold unfurnished, the furniture seen in the photos is used only for staging purposes.
The main entrance opens from Károly Boulevard, while the windows face the quiet and charming Gerlóczy Street. The building itself is elegant and well-maintained, featuring a modern glass elevator and a prime central location.
This apartment is the perfect choice for anyone looking for a representative, characterful home or office in the very heart of Budapest.




Ce bien vous est présenté par:
Zsuzsanna KARPATI
z.karpati@barnes-international.com

Pour ne rien manquer de l’actualité de l’immobilier de luxe en Hongrie comme à l'international, inscrivez-vous à notre newsletter.